modern offices in the heart of summerlin Flexible office condos for sale in a fully remodeled Class A building - available soon. own your space. build your future. Premium office condos in Las Vegas’ most desirable business district. a 40,000 sq. ft. class a remodel Modern office condos designed for today's business - coming soon. contact: Bryan turner | B.1002452.LLC
702.990.5357 | BRYAN@PARTINGSEAS.COM

REDEFINING COMMERCIAL LUXURY

Introducing Park Run, a newly remodeled Class-A office building in the heart of Summerlin. Offering individual office condos for sale, Park Run combines the prestige of ownership with the flexibility modern businesses need.

Sleek, modern, and efficient — Park Run delivers flexible suite options designed to support today’s businesses. Gray shell suites provide the freedom to customize interiors, while high-end finishes define the common areas and amenities. From secure access and ample parking to premium shared spaces, Park Run sets a new standard for office ownership in Las Vegas

0
FLOORS
+/- 0
TOTAL SQ. FT
0
OFFICE CONDO UNITS
0 +
Nearby restaurants

Shared Conference Room Rendering 1/3 Shared Lounge Rendering 2/3 3/3 Upstairs Lobby Rendering

BUILDING AMENITIES

Park Run was designed with modern businesses in mind. From professional-grade finishes to secure access and ample parking, every detail has been considered to create a Class A ownership experience.

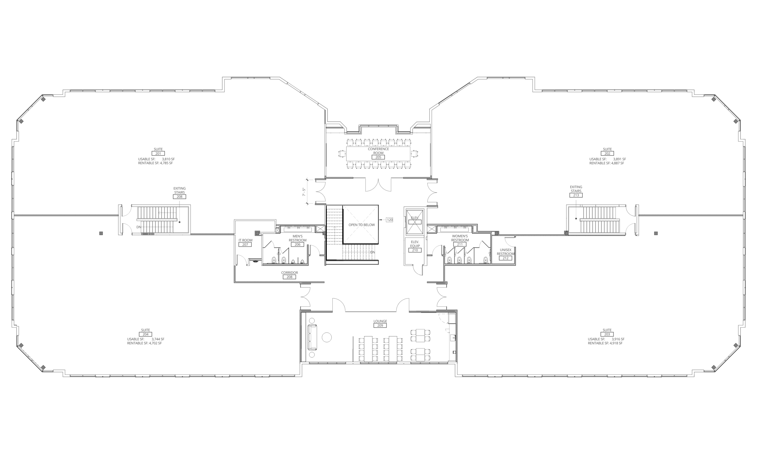
Reimagined lobby and bathrooms with Class “A” finishes and excellent accessibility. Flexible suite sizes with opportunities starting at +/- 2,430 SF.

  • FLOOR NO 1
  • Suite Sizes (Sq. ft) Starting At 2,430
  • TOTAL AREA, SQ.FT +/-19,950
  • Delivery gray shell
  • starting at $500 PSF
INQUIRE NOW (OFF)

    Upscale office lounge with scenic mountain views, ideal for breaks or remote work. Shared conference rooms available — reducing overhead while enhancing flexibility and functionality.

    • FLOOR NO 2
    • SUITE SIZES (SQ. FT) Starting at 4,786
    • TOTAL AREA, SQ.FT +/-19,950
    • delivery gray shell
    • STARTING AT $550 PSF
    INQUIRE NOW (OFF)

      Las Vegas Ballpark
      City National Arena

      Regal Cinemas
      Dillard’s
      Macy’s
      H&M
      Dave & Busters

      Casino
      Resort
      Spa

      Health Club
      Gym
      Fitness Center

      An RBC Company

      Background

      Sports

      Downtown Summerlin

      Red Rock

      Lifetime Fitness

      City National Bank

      Future Downtown Summerlin Development

      about parting seas

      As you invest in your foundation, Parting Seas helps you build to thrive.

      We believe building a strong foundation is the first step to thriving. At Parting Seas, adaptability and honest partnerships guide everything we do — helping entrepreneurs overcome limited access to support, capital, and representation in the early stages. We look beyond the surface, taking on greater risk to create shared success.

      Rooted in real estate development, our approach blends stability with innovation. Transparent in our investments and intentional in our growth, we bring solutions that extend beyond our doors — creating beneficial change that lasts for generations.

      Get in Touch !

        I agree that my submitted data is being collected and stored.

        The information contained on this site is provided for general informational purposes only and is believed to be accurate as of the date of publication. However, the owner, broker, and their respective agents make no representations or warranties, express or implied, regarding the accuracy, completeness, or reliability of the information, including but not limited to square footage, zoning, permitted uses, environmental conditions, utilities, or any other details about the property. All renderings, floor plans, layouts, designs, finishes, and specifications are conceptual and subject to change without notice due to market conditions, governmental requirements, or other factors. Prospective tenants or buyers are advised to conduct their own independent investigations, including inspections, surveys, and consultations with legal, financial, and other professionals, to verify all information and satisfy themselves as to the suitability of the property for their intended use. This property is offered subject to prior lease, sale, withdrawal from the market, or changes in terms or conditions without notice. No agency relationship is created by this brochure unless expressly agreed in writing. All measurements are approximate.

        ARE YOU INTERESTED?

        IT'S TIME TO DISCOVER

        PARK RUN

        BUILDING LOCATION

        Your vision deserves the right foundation. Find us at:

        ADDRESS:

        10615 Park Run Drive, Las Vegas, NV 89144

        CONTACT BROKER

        PSI Realty, LLC | NV Broker License No. B. 1002452.LLC | Information deemed reliable but not guaranteed. Buyer/tenant to verify all details independently. PSI Realty, LLC represents the seller/landlord unless otherwise stated in writing. © 2025 PSI Realty, LLC. All rights reserved.

        INQUIRE